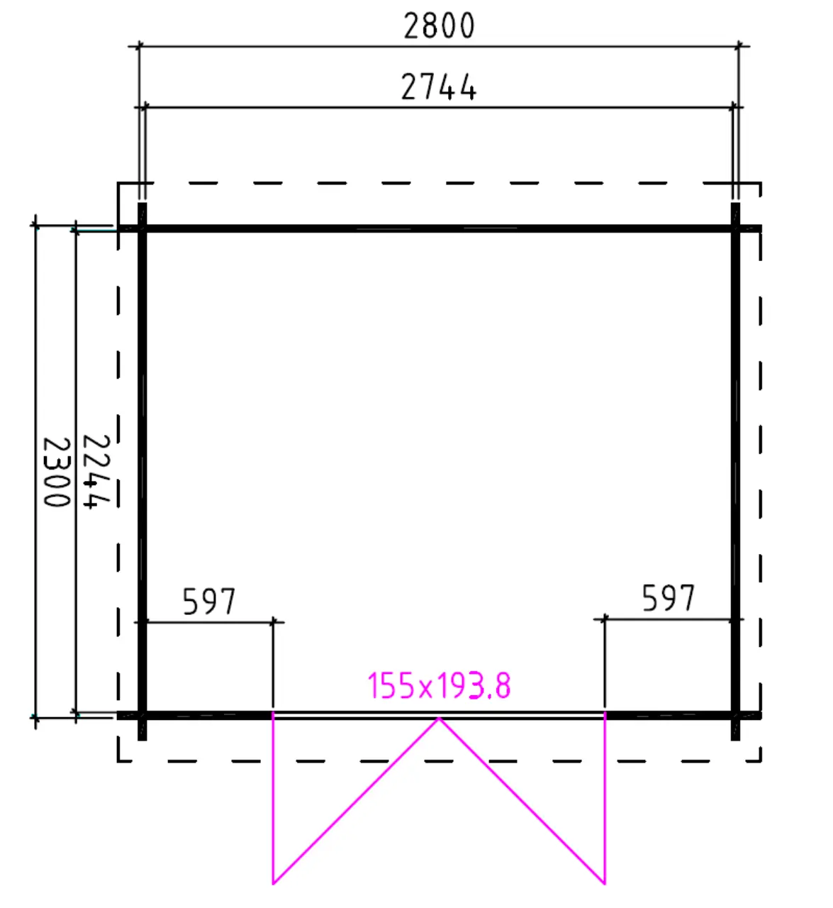
Blokhut 3025L

De blokhut 3025L is een veelzijdige en hoogwaardige houten structuur, ideaal voor gebruik als tuinhuis, opbergruimte, of een gezellige plek om te ontspannen. Hier is een gedetailleerde omschrijving:

Materiaal:

•Gemaakt van hoogwaardig Noord-Europees vurenhout

•Wanddikte: 28 mm, wat zorgt voor een stevige en duurzame constructie

Ontwerp:

•Voorzien van grote dubbele deuren voor gemakkelijke toegang

•Inclusief ramen voor natuurlijk licht en ventilatie

Dak en Vloer:

•Dakbedekking: Inclusief dakleer voor een waterdichte afwerking

•Dakoverstek aan alle zijden voor extra bescherming tegen regen

•Optioneel: dakshingles voor een extra esthetische en duurzame afwerking

•Vloer: Optioneel bij te bestellen, gemaakt van geïmpregneerde vloerbalken en houten vloerplanken

Deuren en Ramen:

•Dubbele deuren met glas, zorgen voor voldoende lichtinval en een uitnodigende uitstraling

•Standaard geleverd met echt glas in de deuren

Montage:

•Eenvoudige doe-het-zelf montage met duidelijke, stap-voor-stap instructies

•Inclusief alle benodigde bevestigingsmaterialen

Gebruik:

•Veelzijdig inzetbaar als tuinhuisje, werkplaats, hobbyruimte, speelhuis voor kinderen, of extra opbergruimte

•Door de stevige constructie en de mogelijkheid om te isoleren, kan de blokhut ook in de koudere maanden comfortabel gebruikt worden

  • Behandeling
    Vloer / Fundament
    Dak
    Overig

    Coating

    Kleur

    Vloer / Fundament

    Afwateringsbalken

    Dakbedekking

    Dakgoot

    Overige accessoires

Gerelateerde producten

Recensies

Perfect werk geleverd door Dymar Evers

Dymar Evers heeft voor ons een fantastische terras en BBQ overkapping geplaatst. We zijn bijzonder in onze nopjes met het perfecte werk dat Dymar opgeleverd heeft.

Hij denkt mee, en stelt goede oplossingen voor.

Zo kwamen we gaandeweg op het idee om sedum op het dak te laten plaatsen, en ook dat regelde Dymar perfect, inclusief hoe we subsidie bij de gemeente aan konden vragen.

Ook de verlichting was het resultaat van Dymars voorstel.

Als je een carport, schuur of terrasoverkapping wilt laten plaatsen, dan moet je zeker Evers montage contacten!

John Z